Главная / Каталог / Сантехника / Инсталляции / GROHE Rapid SLX Инсталляция для подвесного унитаза, монтажная высота 1,13 м
GROHE Rapid SLX Инсталляция для подвесного унитаза, монтажная высота 1,13 м
Складская программа
- Характеристики
- Описание
• смывной бачок GD 2
• со встроенной электрической розеткой
• для установки унитазов-биде (подключение к воде)
• небольшое ревизионное окно для малых панелей смыва
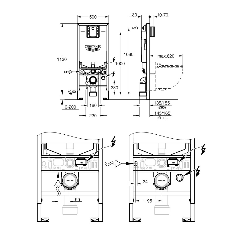
• для монтажа перед стеной или стеной перегородкой
• самонесущая стальная рама с порошковым напылением
• подготовлена для облицовки
• фиксированные подключения
• быстрая регулировка по высоте
• крепежный материал
• проверено -TUEV
• 2 болта-держателя для унитаза
• крепление для керамики
• расстояние между болтами 180/230 мм
• выходной патрубок для унитаза Ø 90 мм
• регулировка глубины монтажа
• редуктор Ø 90/110 мм
• впускной и смывной гарнитуры
• смывной бачокn GD 2, 3 - 6 л, со следующими характеристиками:
• заводская настройка 6 л и 3 л
• Пневматический смывной клапан с тремя режимами слива: 2-х объёмный, старт/стоп, или непрерывный
• подвод воды сверху, справа или сзади
• Арматурная группа I
• с изоляцией от конденсационной влаги
• подключение воды DN 15
• во время сборки не требуется дополнительного инструмента для монтажа инспекционного короба
• для вертикального монтажа
• регулятор скорости смыва
• reduces flow of the flush
• prevents overspill in rimless toilets
• easy flow regulation via inspection shaft without removing the valves
• для монтажа перед стеной необходимо заказать настенные уголки 38 558 00M (продаются отдельно)
• for mounting of flush plates 156 x 197 mm please order revision shaft 66 791 000 (sold separately)
• со встроенной электрической розеткой
• для установки унитазов-биде (подключение к воде)
• небольшое ревизионное окно для малых панелей смыва
• для монтажа перед стеной или стеной перегородкой
• самонесущая стальная рама с порошковым напылением
• подготовлена для облицовки
• фиксированные подключения
• быстрая регулировка по высоте
• крепежный материал
• проверено -TUEV
• 2 болта-держателя для унитаза
• крепление для керамики
• расстояние между болтами 180/230 мм
• выходной патрубок для унитаза Ø 90 мм
• регулировка глубины монтажа
• редуктор Ø 90/110 мм
• впускной и смывной гарнитуры
• смывной бачокn GD 2, 3 - 6 л, со следующими характеристиками:
• заводская настройка 6 л и 3 л
• Пневматический смывной клапан с тремя режимами слива: 2-х объёмный, старт/стоп, или непрерывный
• подвод воды сверху, справа или сзади
• Арматурная группа I
• с изоляцией от конденсационной влаги
• подключение воды DN 15
• во время сборки не требуется дополнительного инструмента для монтажа инспекционного короба
• для вертикального монтажа
• регулятор скорости смыва
• reduces flow of the flush
• prevents overspill in rimless toilets
• easy flow regulation via inspection shaft without removing the valves
• для монтажа перед стеной необходимо заказать настенные уголки 38 558 00M (продаются отдельно)
• for mounting of flush plates 156 x 197 mm please order revision shaft 66 791 000 (sold separately)
спасибо!
Ваш заказ № 12345 оформлен и отправлен на модерацию.
Статус заказа вы можете узнать в личном кабинете
Извините!
На сайте произошла ошибка
Попробуйте позже
GROHE Rapid SLX Инсталляция для подвесного унитаза, монтажная высота 1,13 м


